SANS FRAIS D AGENCE-NI GARANT- STUDIO AVEC BALCON-ST JEAN D'ILLAC

657,88 €
/ mois cc
SANS FRAIS DE DOSSIER
SAINT JEAN D'ILLAC 33127
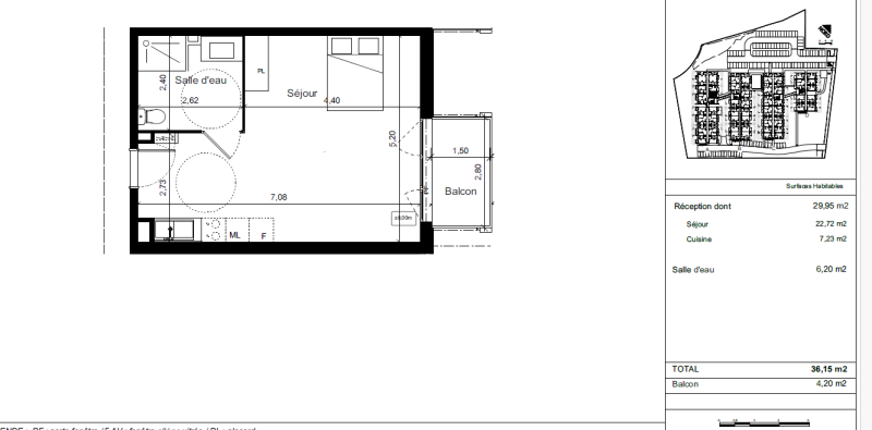
  • 36 m²
  • 1 pièce

Nous vous proposons à la location un appartement T1 de 36 m², disposant d'un balcon de 4m² situé dans une résidence intergénérationnelle neuve et sécurisée.
Une place de parking complète le bien.

Située à 5 min à pied des commerces, cette résidence est conçue autour de la convivialité et des rencontres. Pour assurer la pérennité de son modèle de résidence intergénérationnelle, Erilia s’assure qu’un coordinateur soit au cœur du dispositif pour favoriser l’animation des relations entre les résidents.

Contrat à souscrire à la prise du bail : électricité

L’eau est comprise dans les charges.

Logement disponible à partir du 24 novembre 2025

Dépôt de candidature : erilia.bordeaux@erilia.fr

Documents à fournir : justificatif d’identité (carte d’identité ou titre de séjour), justificatif de revenus (bulletins de paie, contrat de travail ou attestation de paiement de retraite).

Si locataire : trois dernières quittances de loyer + copie de la 1re page du contrat de location.

Si hébergé : attestation d’hébergement + copie de la CNI de l’hébergeur + avis d’imposition.

Ce logement est soumis à des critères de ressources et à un plafond de revenus.

 

Les informations sur les risques auxquels ce bien est exposé sont disponibles sur le site Géorisques : www.georisques.gouv.fr


Informations détaillées

657,88 € / mois
Loyer charges comprises
Dont charges 139,00 € / mois
518,90 € Dépôt de garantie
Les + du logement
Accessibilité PMR/UFR
Ascenseur
Interphone
Parking
Terrasse
Consommation énérgétique
GES A
Classe Energie A

Les informations sur les risques auxquels ce bien est exposé sont disponibles sur le site Géorisques : www.georisques.gouv.fr

Localisation du bien

Ce logement est géré par l'agence Agence Erilia Bordeaux
5, allée Pierre Gilles de Gennes
33700 MERIGNAC
Numéro de contact
06 88 25 29 47
Formulaire de contact
Mon logement en 3 étapes
Estimez le montant idéal de votre loyer
Erilia vous aide à calculer le montant du loyer le plus adapté à votre situation.
Vérifiez votre éligibilité
Erilia vous explique les conditions d'attribution d'un logement et vous guide dans vos démarches.
Contactez-nous
Nous sommes disponibles pour étudier ensemble votre dossier.