SANS FRAIS D'AGENCE - GRAND T3 AVEC BALCON - BRUGES

955,97 €
/ mois cc
SANS FRAIS DE DOSSIER
BRUGES 33520
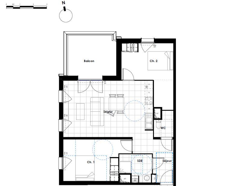
  • 69 m²
  • 3 pièces
  • 2 chambres

Sans frais d'agence, ni garant. 

Nous vous proposons au sein d'une résidence neuve un appartement de type 3 d'une superficie de 68.60 m2 avec cuisine aménagée, 2 chambres dont 1 avec coin dressing, une grand balcon, chaudière individuelle pour l’eau et le chauffage , une place de parking en sous-sol.

Ligne de tram C - Arrêt Terrefort 

Abonnement électricité, gaz et eau à la charge du Locataire. 

Etude du dossier soumise à critères et à plafonds de ressources. ( Les visites se font après étude du dossier). 

Dépôt de dossier : manon.silva@erilia.fr

Mob: 06 79 33 16 47


Informations détaillées

955,97 € / mois
Loyer charges comprises
Dont charges 97,85 € / mois
803,00 € Dépôt de garantie
Les + du logement
Ascenseur
Chaudière individuelle
Parking
Consommation énérgétique
Inconnu
Classe Energie A

Les informations sur les risques auxquels ce bien est exposé sont disponibles sur le site Géorisques : www.georisques.gouv.fr

Localisation du bien

Ce logement est géré par l'agence Agence Erilia Bordeaux
5, allée Pierre Gilles de Gennes
33700 MERIGNAC
Numéro de contact
06 79 33 16 47
Formulaire de contact
Mon logement en 3 étapes
Estimez le montant idéal de votre loyer
Erilia vous aide à calculer le montant du loyer le plus adapté à votre situation.
Vérifiez votre éligibilité
Erilia vous explique les conditions d'attribution d'un logement et vous guide dans vos démarches.
Contactez-nous
Nous sommes disponibles pour étudier ensemble votre dossier.