Sans frais d'agence, ni garant, T1 La Rochelle
À deux pas de la vieille ville, dans une résidence neuve, nous vous proposons un appartement sans frais d’agence et sans besoin de garant.
La gare La Rochelle Porte Dauphine est accessible en moins de 10 minutes à pied, et l’aéroport La Rochelle-Île de Ré se trouve à 5 km. Commerces & commodités
À proximité immédiate :
-
Trois supermarchés, boulangeries, supérettes, épiceries, Restaurants et commerces variés
Nous vous proposons :
-
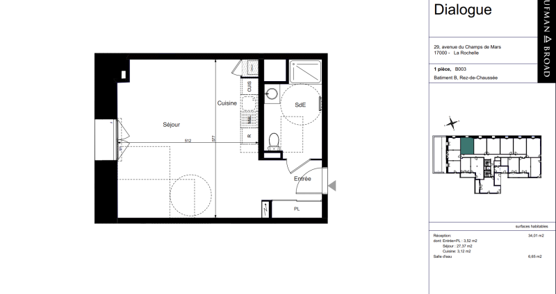
Appartement T1 de 40.66 m2, avec une cuisine aménagée, Chauffage et eau chaude par chaudière individuelle.
-
Abonnements électricité et gaz à la charge du locataire
-
Dossier soumis à critères et plafonds de ressources (visites possibles uniquement après étude du dossier)
Pièce d’identité en cours de validité (carte d’identité ou passeport)
Trois derniers bulletins de salaire
Contrat de travail ou attestation de l’employeur (mentionnant le poste, la date d’embauche et la rémunération)
2 Derniers avis d’imposition : 2023-2024
Trois dernières quittances de loyer (ou attestation d’hébergement si vous êtes logé à titre gratuit)
Pour déposer votre dossier: emilie.jolivet@erilia.fr
📱 Téléphone : 06.22.02.64.00
Informations détaillées
Les informations sur les risques auxquels ce bien est exposé sont disponibles sur le site Géorisques : www.georisques.gouv.fr
Localisation du bien
33700 MERIGNAC
