Sans frais d'agence ni garant T3 à Bruges

935,84 €
/ mois cc
SANS FRAIS DE DOSSIER
BRUGES 33520
  • 74 m²
  • 3 pièces
  • 2 chambres

Sans frais d'agence ni garant

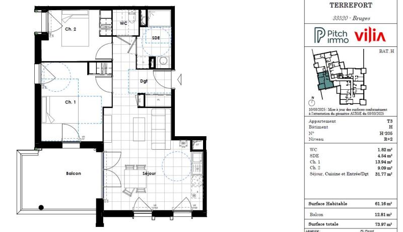
Nous vous proposons à la location un appartement de Type 3 (2 chambres) de 74.m2 au 2ème et dernier étage d'une résidence récente sur la commune de Bruges avec une place de stationnement en sous-sol.

Le bien se situe au 8 Avenue Maryse Bastié, 33520 Bruges

Il se compose d'une entrée avec un dégagement donnant sur le séjour avec une cuisine aménagée, wc séparé, une salle d'eau avec douche à l'italienne, lavabo et meuble sous lavabo, deux chambres dont une avec placard et un balcon. Le bien est équipé d'une chaudière individuelle qui vous permet d'avoir de l'eau chaude et du chauffage.

Contrat à souscrire : EAU + GAZ + ELECTRICITE

LOGEMENT DISPONIBLE A PARTIR DU 04/06/2026

L'état des lieux devra se faire avant 11/06/2026

Etude du dossier soumise à critères et plafond de ressources.

Dépôt de candidature : christophe.richez@erilia.fr

Tél : 05 57 21 04 60

Les informations sur les risques auxquels ce bien est exposé sont disponibles sur le site géorisques : www.georisques.gouv.fr

*l'emplacement des pièces présentées dans les photos peut être différent du réel emplacement des pièces du logement proposé en location.


Informations détaillées

935,84 € / mois
Loyer charges comprises
Dont charges 97,85 € / mois
782,00 € Dépôt de garantie
Les + du logement
Ascenseur
Chaudière individuelle
Interphone
Consommation énérgétique
GES A
Classe Energie A

Les informations sur les risques auxquels ce bien est exposé sont disponibles sur le site Géorisques : www.georisques.gouv.fr

Localisation du bien

Ce logement est géré par l'agence Agence Erilia Bordeaux
5, allée Pierre Gilles de Gennes
33700 MERIGNAC
Numéro de contact
05 57 21 04 60
Formulaire de contact
Mon logement en 3 étapes
Estimez le montant idéal de votre loyer
Erilia vous aide à calculer le montant du loyer le plus adapté à votre situation.
Vérifiez votre éligibilité
Erilia vous explique les conditions d'attribution d'un logement et vous guide dans vos démarches.
Contactez-nous
Nous sommes disponibles pour étudier ensemble votre dossier.