SANS FRAIS - T2 - PARKING - AIX EN PROVENCE

883,11 €
/ mois cc
SANS FRAIS DE DOSSIER
Aix en Provence 13100
  • 42 m²
  • 2 pièces
  • 1 chambre

SANS FRAIS 

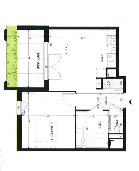
Situé 500 AVENUE FORTUNE FERRINI 13100 AIX EN PROVENCE, dans une belle résidence proche des commerces, écoles et transports, nous vous proposons un appartement T2 de 42m² au rez de chaussé.

Le logement se compose : d’un coin cuisine ouverte, d'une chambre, d’une salle de bain, d’un WC séparé, et d’une terrasse.

Le loyer est de 815.82€ + 67.29€ de charges.

Étude du dossier soumise à conditions et plafonds de ressources.

Renseignements à l’adresse suivante : florence.grandjean@erilia.fr

 

Les informations sur les risques auxquels ce bien est exposé sont disponibles sur le site Géorisques : www.georisques.gouv.fr

--


Informations détaillées

883,11 € / mois
Loyer charges comprises
Dont charges 67,29 € / mois
815,00 € Dépôt de garantie
Les + du logement
Parking
Terrasse
Consommation énérgétique
Inconnu
Inconnu

Les informations sur les risques auxquels ce bien est exposé sont disponibles sur le site Géorisques : www.georisques.gouv.fr

Localisation du bien

Ce logement est géré par l'agence Agence Erilia Centre Provence
Formulaire de contact
Mon logement en 3 étapes
Estimez le montant idéal de votre loyer
Erilia vous aide à calculer le montant du loyer le plus adapté à votre situation.
Vérifiez votre éligibilité
Erilia vous explique les conditions d'attribution d'un logement et vous guide dans vos démarches.
Contactez-nous
Nous sommes disponibles pour étudier ensemble votre dossier.