SANS FRAIS - T4 NEUF - GRABELS

1 133,52 €
/ mois cc
SANS FRAIS DE DOSSIER
GRABELS 34790
  • 80 m²
  • 4 pièces
  • 3 chambres

LOCATION SANS HONORAIRE

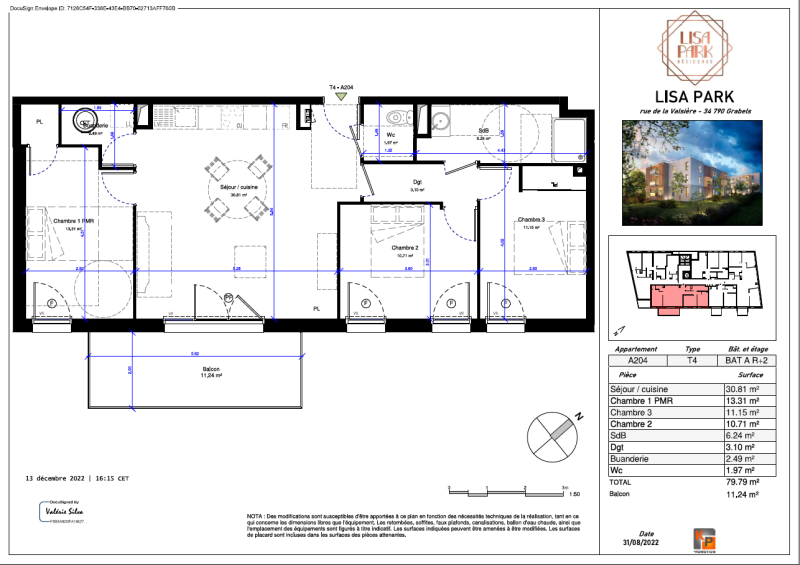
Situé au 1055 rue de la Valsière à Grabels 34790, ce superbe appartement T4 neuf de 79,79 m² sera disponible à la location à partir du 1er octobre 2025. Implanté au 2ᵉ étage d'une résidence récente avec ascenseur, il offre un cadre de vie agréable, fonctionnel et accessible.

L'appartement se compose d'un dégagement, une buanderie, d'un WC indépendant, d'une salle d'eau moderne, de trois chambres dont une chambre adaptée aux personnes à mobilité réduite (PMR), ainsi qu'un séjour avec cuisine ouverte donnant sur le balcon de 11,24m². 

La résidence, calme et sécurisée, se trouve à proximité immédiate de nombreux commerces, services, écoles, transports en commun et espaces verts, dans un quartier dynamique aux portes de Montpellier.

Le loyer est de 1063,67€ + 69,85€ de provisions mensuelles sur charges comprenant : entretien des espaces verts, entretien des espaces communs, taxe d'enlèvement des ordures ménagères.

Stationnement disponible au prix de 67,47€ CC ( 60€ + 7,47€ de charges)

Disponible à partir du 01/10/2025 – Sans frais d’agence

Nous contacter pour plus de renseignements au 06 72 97 19 70

Étude du dossier soumise à conditions et plafonds de ressources.

Les informations sur les risques auxquels ce bien est exposé sont disponibles sur le site Géorisques : www.georisques.gouv.fr 


Informations détaillées

1 133,52 € / mois
Loyer charges comprises
Dont charges 69,85 € / mois
1,063,67 € Dépôt de garantie
Les + du logement
Ascenseur
Interphone
Parking
Consommation énérgétique
GES A
Classe Energie A

Les informations sur les risques auxquels ce bien est exposé sont disponibles sur le site Géorisques : www.georisques.gouv.fr

Localisation du bien

Ce logement est géré par l'agence Agence Erilia Montpellier
10 ter, rue de Gignac
34080 Montpellier
Numéro de contact
06 72 97 19 70
Formulaire de contact
Mon logement en 3 étapes
Estimez le montant idéal de votre loyer
Erilia vous aide à calculer le montant du loyer le plus adapté à votre situation.
Vérifiez votre éligibilité
Erilia vous explique les conditions d'attribution d'un logement et vous guide dans vos démarches.
Contactez-nous
Nous sommes disponibles pour étudier ensemble votre dossier.